
4 Beds
2 Baths
2,270 SqFt
4 Beds
2 Baths
2,270 SqFt
Key Details
Property Type Single Family Home
Sub Type Single Family Residence
Listing Status Coming Soon
Purchase Type For Sale
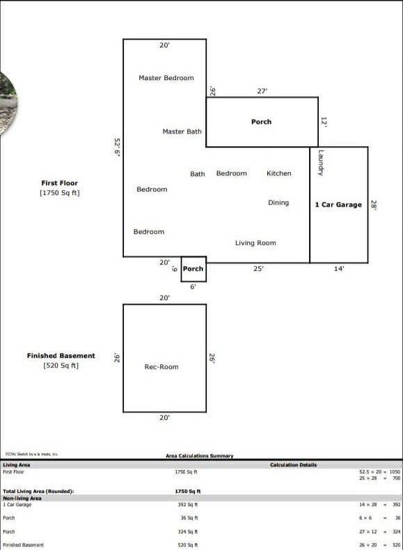
Square Footage 2,270 sqft
Price per Sqft $185
Subdivision Clinch View Ext Two
MLS Listing ID 3040046
Bedrooms 4
Full Baths 2
Year Built 1957
Annual Tax Amount $1,513
Lot Size 0.430 Acres
Lot Dimensions 113 X220
Property Sub-Type Single Family Residence
Property Description
The owners have put real love into this home's design, blending rustic style with modern comfort. Inside, you'll find corrugated steel accent walls and hand-burnt custom trim that make the space feel warm and one-of-a-kind. The living room features an electric fireplace with a custom wood mantle, perfect for cozy nights in. Downstairs, a large family room with a wood-burning fireplace is ready for movie nights or game days.
The primary bedroom offers two big closets and opens directly onto a private porch — your own peaceful spot to enjoy morning coffee. There's storage galore here too, including a large walk-in encapsulated crawl space, a huge attic above the garage, and plenty of closet space throughout.
Step outside and you'll find a big, flat, fenced-in backyard that's truly something special. The sellers planted peach and nectarine trees, lemon and lime trees, elderberry bushes, and even created a small wildflower path along the fence line — a perfect touch of country beauty right in the city.
Located in Clinton, Tennessee, you're close to parks, schools, and local shops, and just a quick drive from Knoxville for work or weekend fun. Enjoy East Tennessee living at its finest — a mix of comfort, creativity, and charm in one unforgettable home.
Location
State TN
County Anderson County
Interior
Heating Central
Cooling Central Air
Flooring Wood
Fireplaces Number 1
Fireplace Y
Appliance Oven, Range, Dryer, Refrigerator, Stainless Steel Appliance(s), Washer
Exterior
Garage Spaces 1.0
Utilities Available Water Available
View Y/N false
Roof Type Asphalt
Building
Story 1
Sewer Public Sewer
Water Public
Structure Type Vinyl Siding
New Construction false
Schools
Elementary Schools Clinton Elementary
Middle Schools Clinton Middle School
High Schools Clinton High School



